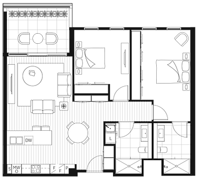
This attractive two-bed, two-bathroom apartment on the ground floor offers a balcony leading off the living area with easterly aspect to enjoy morning sun.
Features include open plan living room, large master bedroom, bathroom with walk-in shower, European style laundry and generous internal storage. With timber flooring throughout the living areas, ducted air conditioning, emergency call system, security video intercom, secure basement parking and premium integrated kitchen appliances, this is modern retirement living at its finest!

Download the floorplan.
Note: images are of a similar home with the same floorplan.
Our beautifully styled apartments are open for inspection, Monday - Friday 10am - 4pm.
To book a private tour, call our sales specialist, Andy Gordon: 0458 603 047